- €155,500
Общ преглед
- 2817
Описание
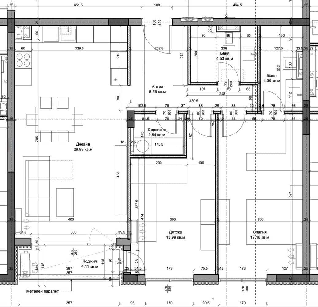
г.Варна, ГАЛАТА – ПРОСТОРЕН ТРИСТАЕН – ДНЕВНА = 30кв.м – СПАЛНЯ-17кв.м и 14кв.м – СРЕДЕН ЕТАЖ
Имотът представлява : Обща площ 95кв.м. Входно антре, просторна и слънчева всекидневна с обособена кухненска част – 30кв.м, светла спалня – 17кв.м с собствена баня , втора спалня 14кв.м , баня с тоалет 4.5кв.м и тераса. Жилището е разположено на 2 жилищен етаж в нова сграда . ОПЦИЯ ЗА ЗАКУПВАНЕ НА ПАРКОМЯСТО само за 8500€
Състояние : Имотът се предлага съгласно БДС с опция за завършване ДО КЛЮЧ, изготвяне на проект за интериорен дизайн от Бравис Дизайн на преференциални цени.
ОТЛИЧНА ЛОКАЦИЯ в ГАЛАТА предлага спокойствие, зеленина и отлична транспортна свързаност с централната част на Варна . Имотът е подходящ както за дългосрочно обитаване, така и за отдаване под наем с добра доходност, благодарение на търсенето в района и близостта до плаж и парк.
* Като клиенти на Бравис Брокърс получавате най-добрите условия при нужда от ипотечен кредит.
За повече информация и оглед: свържете се с нас – 0876300832 Вячеслав Хаджиоглов
Детайли
-
ID на оферта 2817
-
Цена €155,500
-
Квадратура 95
-
Спални 2
-
Стаи 3
-
Тип имот 3-стаен
-
Вид оферта Продава
Екстри
Информация
Преглед на профилаПодобни имоти
ВАРНА МЛАДОСТ — ПРОСТОРЕН ТРИСТАЕН – НОВА СГРАДА АКТ 16 – ПАНОРАМА
- €194,990







