- €530,000
Общ преглед
- 2783
Описание
ЕВКСИНОГРАД – ОТЛИЧЕН АСФАЛТОВ ДОСТЪП – 5 СПАЛНИ – ПАНОРАМА – ЛУКСОЗНО СТРОИТЕЛСТВО
РОСИЦА ЦОНЕВА – 0877 300 267
БРАВИС БРОКЪРС има удоволствието да Ви предложи прекрасна къща на три етажа с отличен достъп в района на Евксиноград, на 700м от Резиденция Евксиноград. Къщата ще бъде построена с най-висок клас строителни материали.
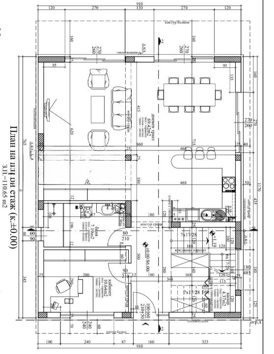
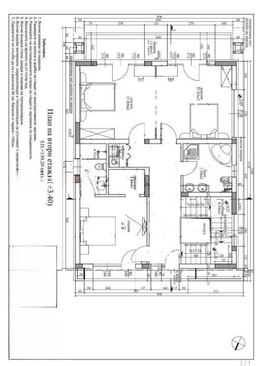
Разпределението е следното :
* Първи етаж – 110кв.м – гараж / 25кв.м / , входно антре, просторен дневен тракт с кухненска част / 70кв.м /, баня с тоалетна, спалня / 11кв.м / , баня с тоалет / 7кв.м / , веранда
* Втори етаж – 130кв.м – три големи спални / по 18 кв.м /, едната от които с дрешник и самостоятелна баня с тоалет, втора баня / 8кв.м / , тераса / 12 кв.м / , перално помещение.
* Трети етаж – 86кв.м – спалня / кабинет / , тераса с прекрасна морска панорама / 55 кв.м / , баня с тоалет.
Имотът се издава съгласно „БДС“, като може да бъде завършен на преференциални цени „ДО КЛЮЧ“. Инсталация за термопомпа, СОТ, кабелна, интернет.
Отлична Локация : Лесен и бърз достъп до главни пътни артерии, административни учреждения, банки, училища, детски градини, автобусни спирки, детски площадки, аптеки, търговски центрове, супермаркети, козметични студия, заведения и туристически атракции.
Детайли
-
ID на оферта 2783
-
Цена €530,000
-
Квадратура 350
-
Спални 4
-
Тип имот Къща
-
Вид оферта Продава
Лихвен калкулатор
-
Първоначално плащане
-
Размер на заема
-
Месечна ипотечна вноска
Подобни имоти
ВАРНА ТРАКАТА — САМОСТОЯТЕЛНА КЪЩА — ДВЕ ПАРКОМЕСТА – СОБСТВЕН ДВОР
- €298,000
ЕВКСИНОГРАД – ДО БУЛ. КНЯЗ БОРИС – ЛУКСОЗНА КЪЩА С ТРИ СПАЛНИ – РАЗСРОЧЕНО ПЛАЩАНЕ
- €419,990








